ミルコマンション曙シーフロントビュー 1401号























那覇市曙3丁目|3LDK|100.55㎡|最上階・角部屋
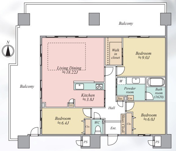
那覇市曙3丁目、地上14階建の最上階・角部屋に位置する開放感あふれる3LDK。 専有面積100.55㎡、LDK約22帖のゆとりある住空間に加え、61.17㎡のワイドバルコニー付き。 海を望む眺望と日当たりの良さが魅力のハイグレードレジデンスです。
おすすめポイント
- 専有面積100.55㎡のゆとりある3LDK
- 14階最上階・角部屋の開放感
- 海が見える眺望良好な住戸
- LDK約22帖の広々空間
- 対面式システムキッチン・3口ガスコンロ付き
- 浴室乾燥機・独立洗面所・温水洗浄便座付き
- ウォークインクローゼット完備
- オートロック・TVモニター付インターホンで安心
- ペット飼育可(2匹まで)
- 駐車場2台可(縦列)
物件概要
| 価格 | 9,800万円 |
|---|---|
| 間取り | 3LDK(洋9・洋6.4・洋6・LDK22) |
| 専有面積 | 100.55㎡(30.42坪) |
| バルコニー面積 | 61.17㎡(18.5坪) |
| 所在地 | 那覇市曙3丁目 |
| 交通 | 沖縄シャープ前バス停 徒歩約2分 |
| 築年月 | 2024年12月 |
| 所在階 / 階数 | 14階 / 地上14階・地下1階建 |
| 建物構造 | RC(鉄筋コンクリート造) |
| 管理費 | 15,500円/月 |
| 修繕積立金 | 7,300円/月 |
| 駐車場 | 2台 7,000円/月(縦列) |
| 管理形態 | 一部委託管理 |
| 管理組合 | 有り |
| ペット | 可(2匹まで) |
| 引渡し | 相談 |
| 取引態様 | 仲介 |
設備・条件
給湯、ガスコンロ、対面式キッチン、システムキッチン、3口以上コンロ、バス・トイレ別、浴槽、 シャンプードレッサー、独立洗面所、浴室乾燥機、浴室1坪以上、温水洗浄便座、乾燥機、 TVモニター付インターホン、オートロック、室内洗濯機置き場、オール洋間、 ウォークインクローゼット、シューズボックス、エレベーター、宅配ボックス、 角部屋、最上階、フローリング、ワイドバルコニー、ペット用施設、100㎡以上、 屋根付駐車場、駐輪場、海が見える、日当たり良好、眺望良好、LDK15畳以上、全居室6畳以上。
物件コメント
最上階・角部屋ならではの開放感と、海を望む眺望が魅力の一邸です。 約22帖のLDKは、ご家族でゆったりとくつろげる広さを確保。 対面式システムキッチンや浴室乾燥機、独立洗面所など、日々の暮らしを快適に支える設備も充実しています。 ペット飼育にも対応しており、大切なご家族と一緒に新生活を始めたい方にもおすすめです。
曙小学校まで徒歩5分と、子育て世帯にも嬉しい立地。 バス停まで徒歩約2分で、日々の移動もしやすい住環境です。
周辺環境
- 曙小学校 徒歩5分
- 安岡中学校 徒歩24分
オハナ不動産からのご案内
一生に一度の大きなお買い物だからこそ、ご不安な点もあるかと思います。 住宅ローンのご相談もお任せください。 諸費用を含めたお借入れや、地方銀行・ネット銀行を含めた金融機関選びまで、 お客様に合ったご提案をさせていただきます。 無理な押し売りや営業は一切いたしません。土日もご案内可能ですので、お気軽にご相談ください。
また、ご希望のルームエアコンを全室設置するプレゼント特典もご用意しております。 快適な状態で新生活をスタートしていただけます。
お問い合わせ
合同会社オハナ不動産
〒904-2142 沖縄県沖縄市登川2丁目1-3
TEL:098-880-8712 / 携帯:070-3803-0087 / FAX:098-880-8712
メール:ito@ohana-realestate.co.jp
営業時間:9:00〜18:00(定休日:日曜・祝日)
HP:https://ohana-realestate.co.jp/
掲載内容と現況が異なる場合は現況を優先いたします。
